Designer Plus
Drawings from a recent job:

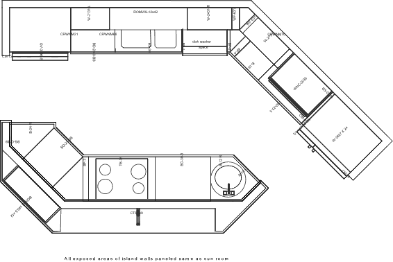
A recently completed kitchen is the feature here. All of these drawings were used in the communications involved in selling this job.
Click on an option thumbnail or PDF (gifs are 8 color pictures, pdfs are Acrobat readable files) to see the drawing, use the browsers back key to return. The GIFs were made by converting a *.dwg to GIF, the PDFs were made by printing to Acrobat.
Perspective ...................................
PDF
Island ...........................................
PDF
Valance
options..............................
PDF
Plan nomenclature..........................
PDF
Plan text ........................................
PDF
Utility Perspective .........................
PDF
Utility Plan text .............................
PDF